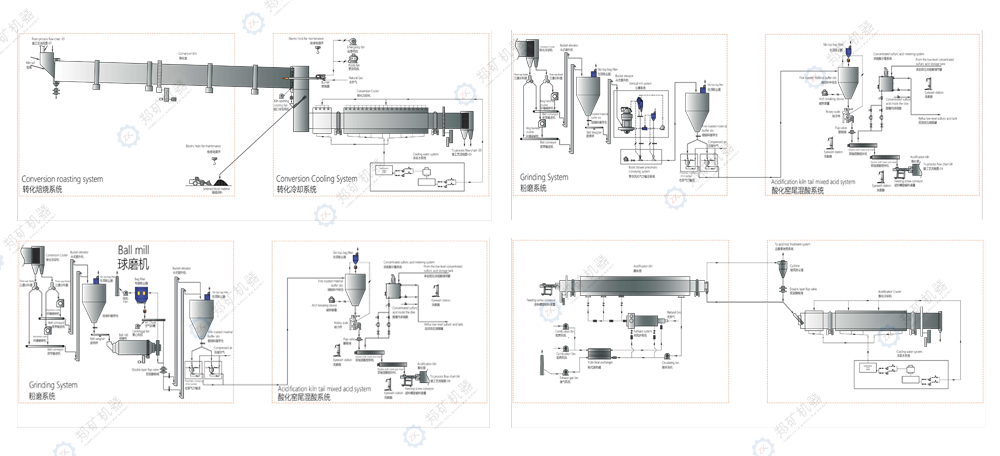
锂辉石火法煅烧是硫酸法提锂工艺中的核心前置工序。其本质是通过高温热处理,破坏锂辉石稳定的晶体结构,并与硫酸发生固相反应,将难溶的锂转化为可溶的硫酸锂,以便后续水浸提取。
单条生产线产能:3000t/a、5000t/a、10000t/a、20000t/a、30000t/a、35000t/a、40000t/a
加热方式: 天然气加热、电加热
适用范围:电池级碳酸锂、电池级氢氧化锂、工业级碳酸锂/氯化锂、金属锂
原料适配广:可兼容生产锂云母、锂辉石、磷锂铝石等原料,并可适应块料、精矿等原料状态。
工艺设计灵活:支持单线产能覆盖3000t/a至40000t/a,可灵活匹配不同规模生产需求。设备布局紧凑,工艺流程顺畅,便于连续化生产与系统集成。
运行智能化:支持全流程自动化运行,提升操作稳定性与工艺可追溯性。
节能降耗:优化燃烧系统与炉体保温结构,配套余热回收装置,有效降低单位产品能耗。 加热方式灵活可选(天然气/电),适配不同区域能源结构与环保要求。

| 产品 | 年产量(t/a) | 锂辉石量(t/h) | 主机设备型号 | ||
|---|---|---|---|---|---|
| 转化工序 | 酸化工序 | 球磨机 | |||
| 碳酸锂Li2CO3 | 5000 | 5-6 | 焙烧窑:φ2.8×50m;冷却机: φ2.6×40m | 酸化窑:φ2.8×50m;冷却机: φ2.4×35m | φ1.83×6.4m |
| 碳酸锂Li2CO3 | 10000 | 10-12 | 焙烧窑:φ3.5×60m;冷却机: φ2.4×40m | 酸化窑:φ3.5×50m;冷却机: φ2.4×40m | φ2.4×8m |